Referenze
Monastero-Fortezza, Santo Spirito D'Ocre
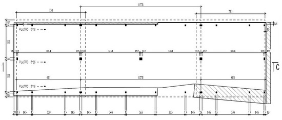
Nella terrazza dell’edificio è stata realizzata un’area coperta per cerimonie con travi lamellari curve 90x130 e archi 90x90 mm, creando un effetto scenografico molto suggestivo che si incastona perfettamente nel contesto storico.
Descrizione dell’intervento
Il Monastero-Fortezza di Santo Spirito di Ocre (AQ) costruito nel 1222 costituisce il primo insediamento cistercense nella vallata aquilana. Recentemente ristrutturato è oggi proprietà del comune di Ocre, è stato oggetto negli anni di un lungo restauro iniziato nel 1970 e parzialmente conclusosi nel 2000.
Attualmente la struttura è gestita dalla società Monasterio e destinata ad attività culturali e turistico-ricettive, in un'ottica di riuso funzionale di contenitori storici di pregio e nella rigorosa riproposizione dell'antico utilizzo degli spazi.
In questo contesto storico e architettonico unico nel suo genere, è nata l’esigenza di creare un’area coperta dove poter ospitare banchetti e cerimonie.
La Linea Legno, marchio commerciale della Wood Albertani, si è occupata dalla progettazione alla realizzazione e posa in opera della struttura. L’ufficio tecnico ha progettato una struttura in legno lamellare di pino impregnato in autoclave lunga 30 metri e larga 7,50 metri.
L’opera si caratterizza per la sua particolare struttura a 3 corpi di diversa altezza, con il centrale più basso rispetto agli altri due. L’utilizzo delle travi lamellari curve 90x130 e degli archi lamellari 90x90 mm creano un effetto scenografico molto suggestivo che si incastona perfettamente nel contesto storico.
Motivazione delle scelta
La scelta della materia prima è stata influenzata dalla posizione della struttura stessa. Trattandosi di una struttura che doveva essere posizionata nel chiostro del monastero, pertanto soggetta alle aggressioni degli agenti atmosferici, si è deciso di utilizzare il legno per esterni più idoneo all’utilizzo specifico, il pino impregnato in autoclave.
Lo stabilimento Wood Albertani di Bazzano (AQ), dove viene prodotto il lamellare di pino, dispone di un moderno impianto di impregnazione in autoclave dove viene eseguito il processo di impregnazione a pressione secondo i severi parametri dettati della normativa RAL. Tutti i prodotti di pino impregnati della Linea Legno sono coperti da garanzia di 10 anni contro i deterioramenti causati dall’esposizione agli agenti atmosferici. L’azienda Wood Albertani infatti dispone del certificato RAL rilasciato dall’Istituto Tedesco per la Qualità garantita.
La Linea Legno dispone di una rete di rivenditori in tutta Italia che realizzano strutture su misura utilizzando i semilavorati di lamellare e massiccio prodotti all'interno degli stabilimenti delle Industrie Albertani.
Il Monastero-Fortezza di Santo Spirito di Ocre (AQ) costruito nel 1222 costituisce il primo insediamento cistercense nella vallata aquilana. Recentemente ristrutturato è oggi proprietà del comune di Ocre, è stato oggetto negli anni di un lungo restauro iniziato nel 1970 e parzialmente conclusosi nel 2000.
Attualmente la struttura è gestita dalla società Monasterio e destinata ad attività culturali e turistico-ricettive, in un'ottica di riuso funzionale di contenitori storici di pregio e nella rigorosa riproposizione dell'antico utilizzo degli spazi.
In questo contesto storico e architettonico unico nel suo genere, è nata l’esigenza di creare un’area coperta dove poter ospitare banchetti e cerimonie.
La Linea Legno, marchio commerciale della Wood Albertani, si è occupata dalla progettazione alla realizzazione e posa in opera della struttura. L’ufficio tecnico ha progettato una struttura in legno lamellare di pino impregnato in autoclave lunga 30 metri e larga 7,50 metri.
L’opera si caratterizza per la sua particolare struttura a 3 corpi di diversa altezza, con il centrale più basso rispetto agli altri due. L’utilizzo delle travi lamellari curve 90x130 e degli archi lamellari 90x90 mm creano un effetto scenografico molto suggestivo che si incastona perfettamente nel contesto storico.
Motivazione delle scelta
La scelta della materia prima è stata influenzata dalla posizione della struttura stessa. Trattandosi di una struttura che doveva essere posizionata nel chiostro del monastero, pertanto soggetta alle aggressioni degli agenti atmosferici, si è deciso di utilizzare il legno per esterni più idoneo all’utilizzo specifico, il pino impregnato in autoclave.
Lo stabilimento Wood Albertani di Bazzano (AQ), dove viene prodotto il lamellare di pino, dispone di un moderno impianto di impregnazione in autoclave dove viene eseguito il processo di impregnazione a pressione secondo i severi parametri dettati della normativa RAL. Tutti i prodotti di pino impregnati della Linea Legno sono coperti da garanzia di 10 anni contro i deterioramenti causati dall’esposizione agli agenti atmosferici. L’azienda Wood Albertani infatti dispone del certificato RAL rilasciato dall’Istituto Tedesco per la Qualità garantita.
La Linea Legno dispone di una rete di rivenditori in tutta Italia che realizzano strutture su misura utilizzando i semilavorati di lamellare e massiccio prodotti all'interno degli stabilimenti delle Industrie Albertani.
- progettista: Daniele Zinobile
- Azienda: ALBERTANI CORPORATES
- progettista: Daniele Zinobile

